Supermercado en Escobar




1er Premio / Premio SCA-CPAU de Arquitectura Argentina 2025






El supermercado JUMBO se ubica estratégicamente sobre la Ruta Provincial 25, dentro del desarrollo urbano de Puertos, en Escobar, con el propósito de abastecer tanto a sus habitantes como a las localidades cercanas. Su localización responde a un criterio urbano claro: se sitúa en un área de creciente consolidación que ya cuenta con equipamientos de uso cotidiano como un colegio y una estación de servicio. La incorporación de un supermercado en este punto refuerza la noción de centralidad y garantiza a la comunidad un acceso inmediato a bienes de primera necesidad, potenciando la vida cotidiana y contribuyendo al desarrollo integral de la zona.
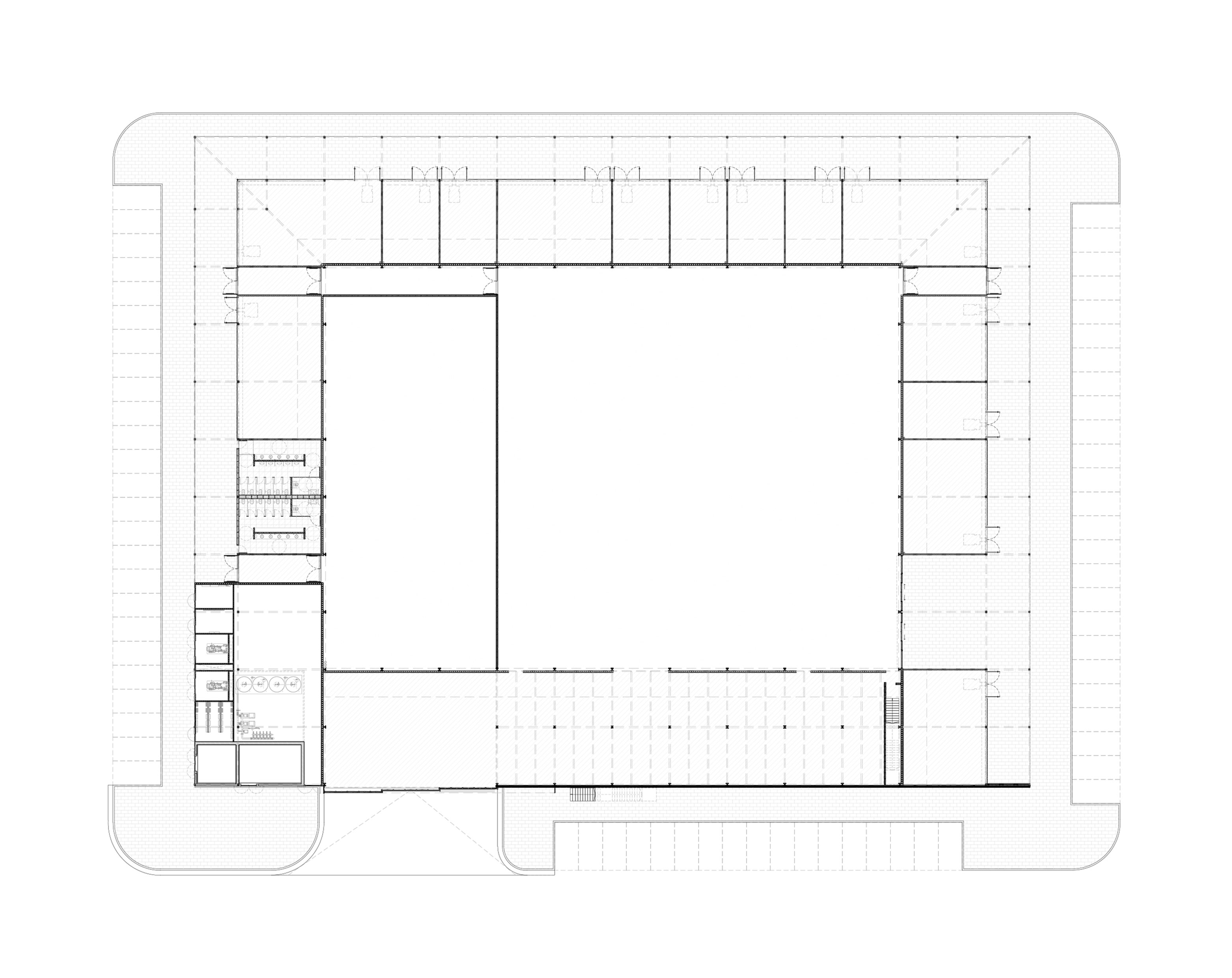
En cuanto a su concepción arquitectónica, el edificio se resuelve a partir de un sistema constructivo metálico que adopta una modulación de 6 x 6. Esta lógica estructural permite un orden claro en la disposición de los espacios, facilitando tanto la ejecución como el mantenimiento de la obra. Los locales comerciales se ubican en el perímetro del edificio, generando una franja activa de servicios complementarios que dialogan directamente con el espacio urbano circundante.
El corazón del proyecto es el supermercado, que se desarrolla en una planta libre de 40 x 60 metros. La amplitud del espacio se logra gracias a la implementación de cerchas metálicas estructurales tipo Shed, cuya geometría, además de permitir grandes luces sin apoyos intermedios, posibilita la iluminación cenital natural. Esta decisión proyectual no solo responde a criterios de eficiencia energética, al reducir la necesidad de iluminación artificial durante las horas diurnas, sino que también mejora la experiencia espacial del usuario, brindando una atmósfera interior más confortable.
La cubierta, elemento clave del proyecto, se convierte en un recurso funcional y expresivo que articula la dimensión estructural con la ambiental. En conjunto, el diseño logra un equilibrio entre eficiencia constructiva, sostenibilidad y funcionalidad, consolidando al edificio como una pieza fundamental dentro de la trama de servicios de Puertos y sus alrededores.









