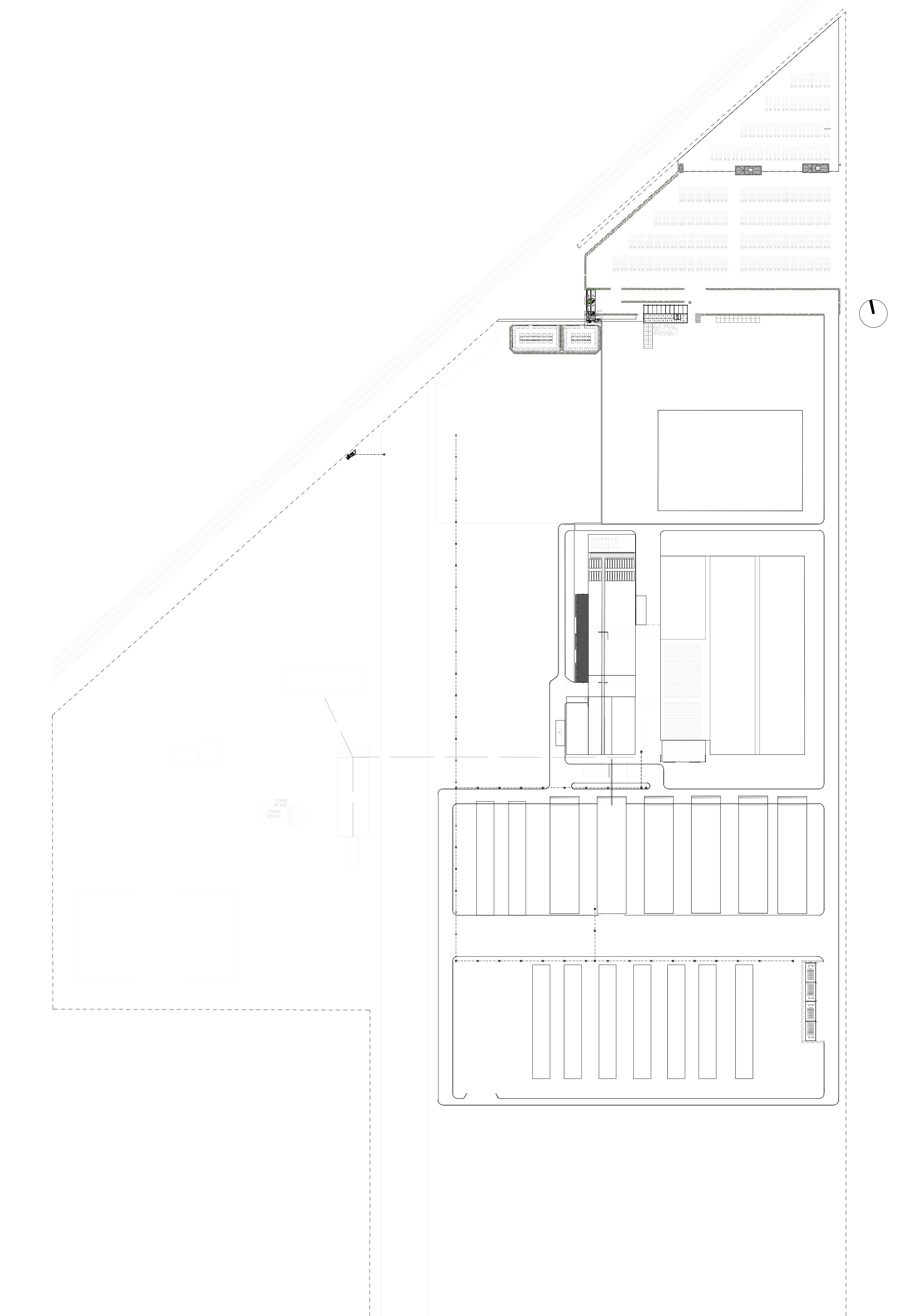
Planta Industrial de Mani - Oficinas




2025
Rufino, Santa Fe. Argentina
Industria
5500 m2
Ver créditos
Arq. Asociados: Ligia Gaffuri. Martin Torrado. / Colaboradores: Roberto Szraiber. Francisco Piferer. Martina Carassale. Manuel Giraudo. Magali Satelier. Agustina Herrera. Martina Togninelli. Sofia Carena. Guillermo Gianre. Josefina Baldini. Josefina Bustos.
2025
Rufino, Santa Fe. Argentina
Industria
5500 m2
Ver créditos
Arq. Asociados: Ligia Gaffuri. Martin Torrado. / Colaboradores: Roberto Szraiber. Francisco Piferer. Martina Carassale. Manuel Giraudo. Magali Satelier. Agustina Herrera. Martina Togninelli. Sofia Carena. Guillermo Gianre. Josefina Baldini. Josefina Bustos.














2024 | Copyright | Torrado, Todos los derechos reservados

