Casas Mellizas




2017
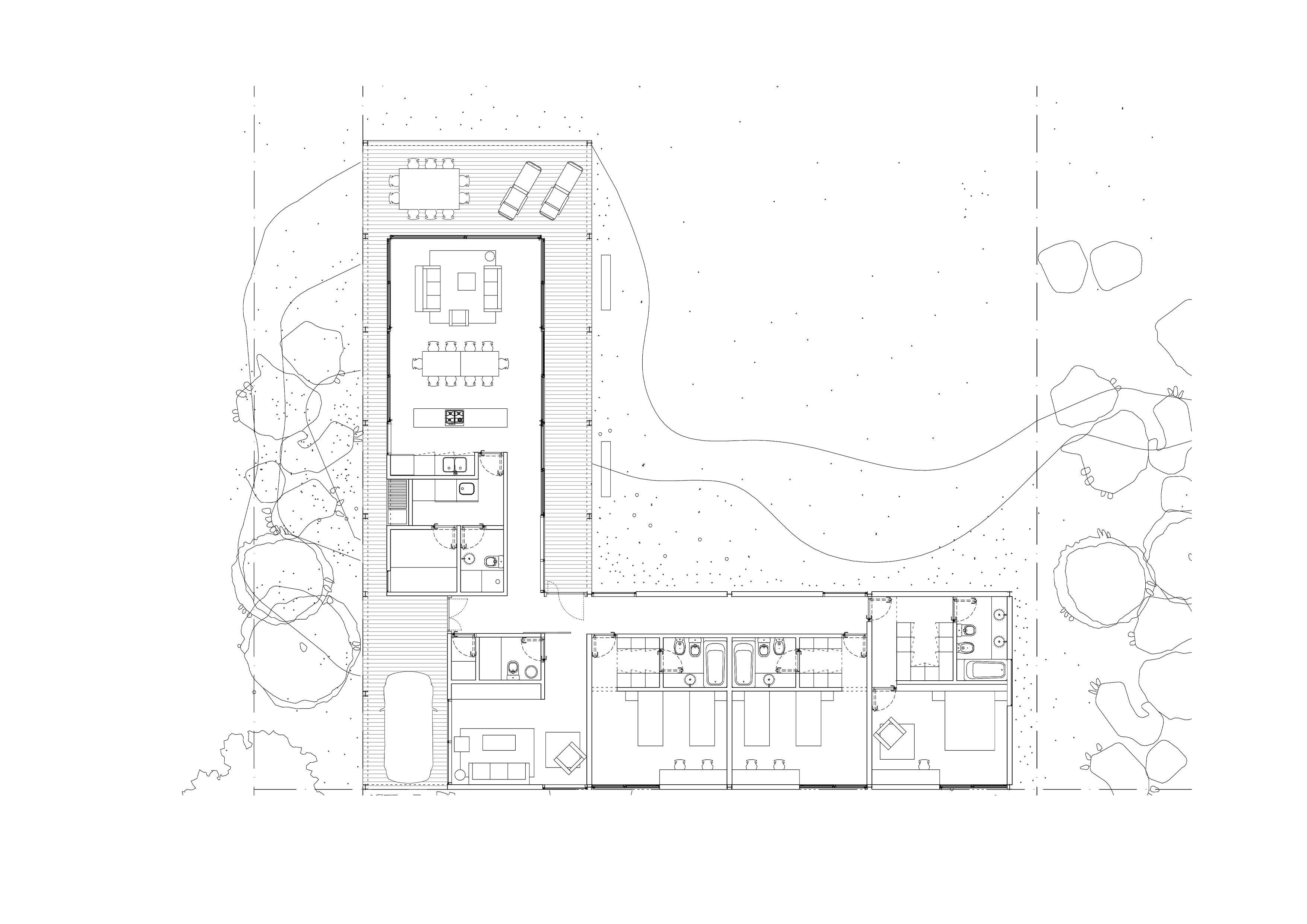
Pilar, Buenos Aires. Argentina
Residencial
850 m2
Ver créditos
Arq. Asociados: Ligia Gaffuri. Martin Torrado.
2017
Pilar, Buenos Aires. Argentina
Residencial
850 m2
Ver créditos
Arq. Asociados: Ligia Gaffuri. Martin Torrado.














2024 | Copyright | Torrado, Todos los derechos reservados

