Pabellon Deportivo Sede Ceibos




Cada uno de los barrios del emprendimiento Puertos posee una sede deportiva de un Club principal común a todos. El proyecto consiste entonces en la creación de un sistema tanto espacial como constructivo, que identifique a cada sede, se basa en la relación de un conjunto de elementos que puedan ir variando encontrando un orden lógico en cada caso según las necesidades.








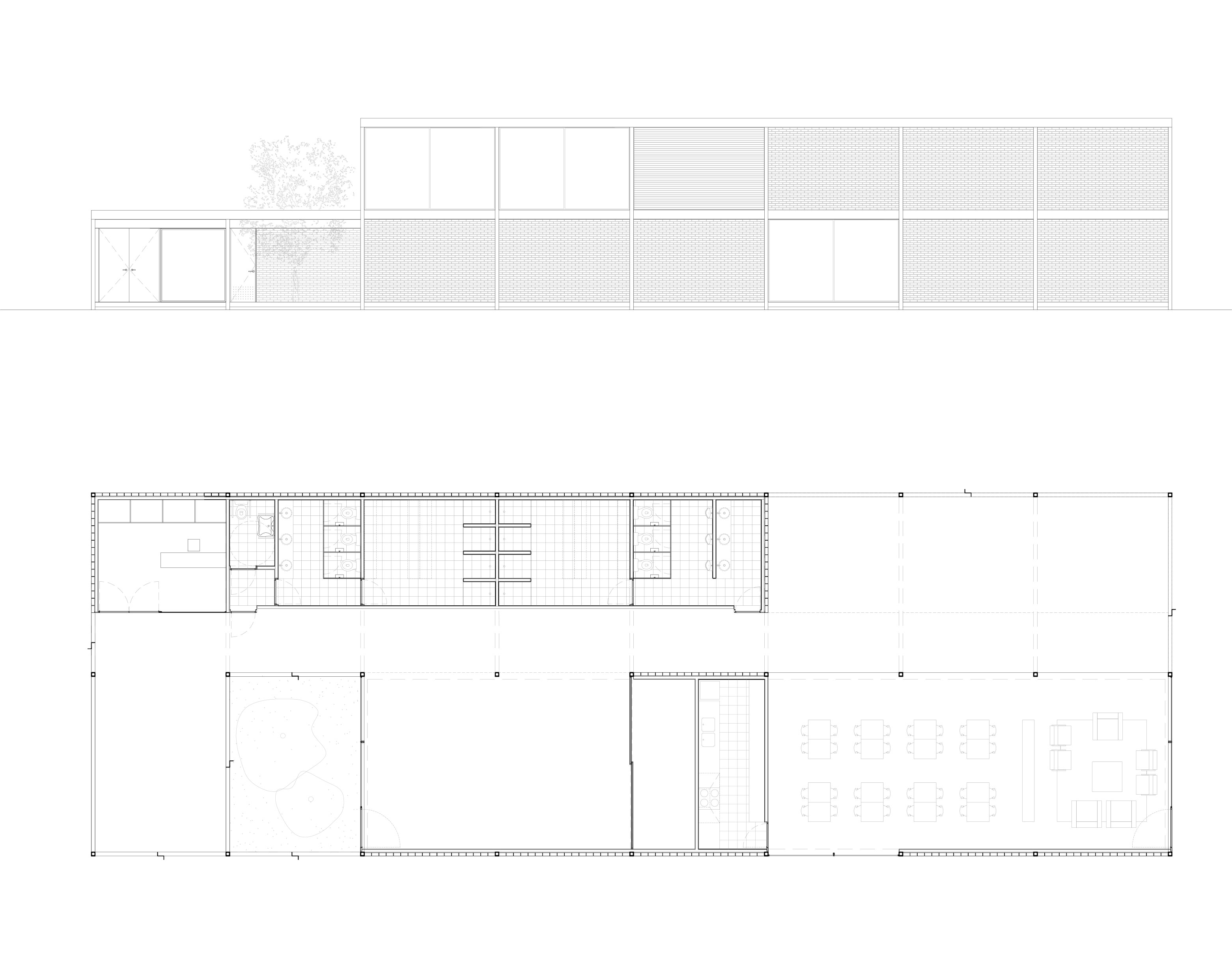
Un modelo posible de repetir y variar. Las sedes del club poseen una serie de equipamientos deportivos, canchas de tenis, campo de futbol, pileta recreativa y un edificio utilitario de vestuarios, administración, y salones sociales o gimnasio. Los barrios de Marinas y Ceibos, sirven de primeros prototipos. El sistema se compone de diferentes módulos espaciales, interiores y exteriores. Galerias, patios, y terrazas de expansión se articulan con los programas de servicios según las orientaciones y el paisaje.
El sistema constructivo es modular de mínimos desperdicios de material, con una grilla estructural de perfiles normalizados y losas de encofrado metálico perdido vistas, los cerramientos son de doble muro, con paños de ladrillo visto completos en el exterior, las carpinterías en aluminio al igual que los sistemas de celosías de ventilación. Los edificios son precisos, ligeros, y medidos, pero a la vez flexibles e indeterminados en su configuración, variables, modulares, y abiertos.







