Concejo Deliberante y Renovación Urbana




La propuesta desarrolla un plan de masas y usos, en consonancia con el Concejo Deliberante. La estratégica ubicación del terreno y su particular topografía conforman posibilidades únicas de vistas hacia el centro de la ciudad de Córdoba.








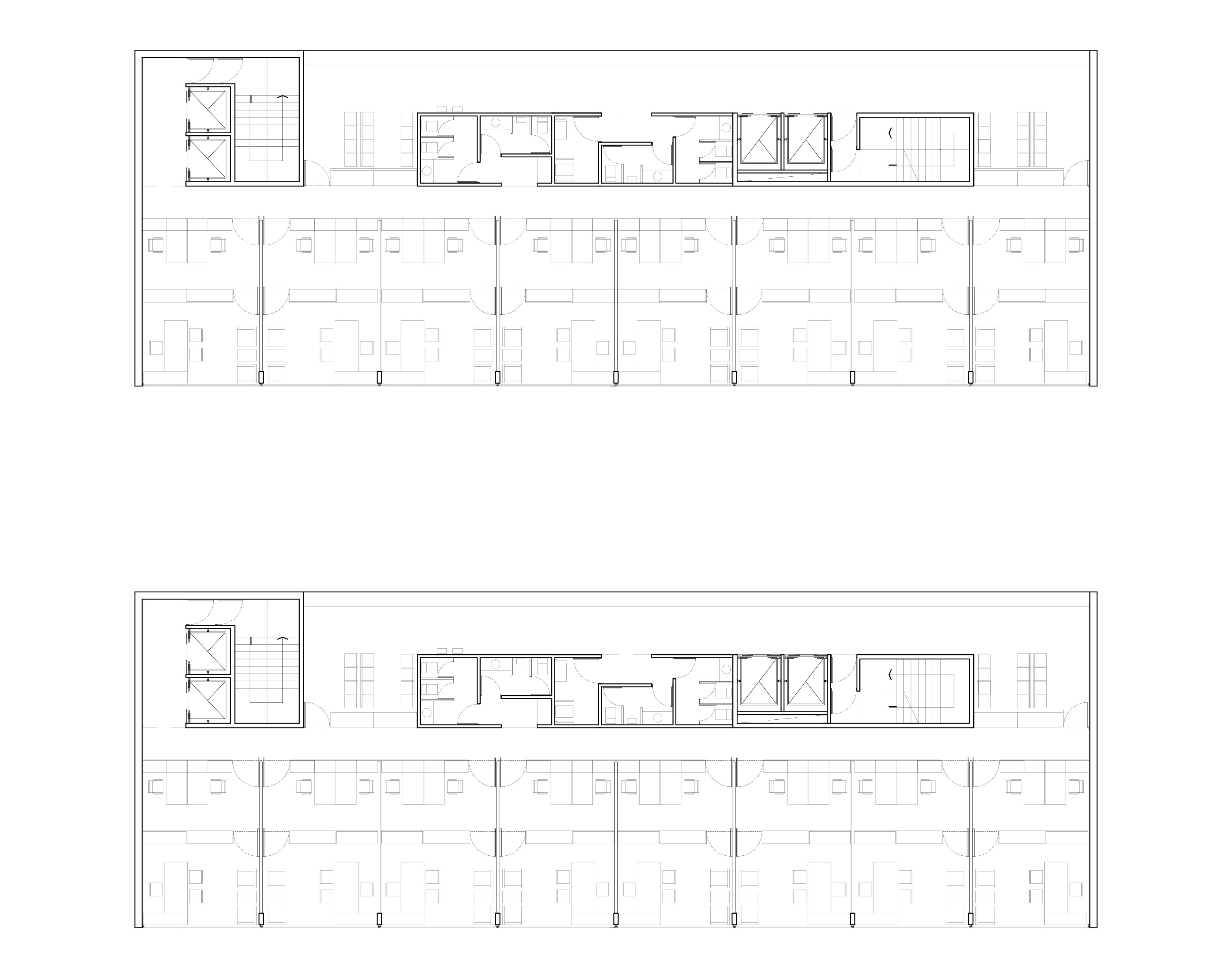
Se propone un edificio libre de columnas, de plantas lineales y flexibles, en varios pisos ganando para todos los despachos las mejores vistas de la ciudad y el río. La organización de esta óptima planta de oficinas se logra a través de la separación de la circulación pública y privada de los funcionarios y empleados. A su vez, el recinto, elemento principal del edificio, genera un semicubierto de grandes dimensiones de carácter público como plaza cívica en continuidad con la propuesta del parque lineal costero. A través de éste se accede a la recepción y mesa de entradas, en un primer piso se ubica el bar y el foyer del recinto y auditorio, con la posibilidad de integrarse y generar un único lugar. En la planta superior se ubican los bloques partidarios y sus autoridades. En los tres siguientes, los concejales. Por último, las secretarias se ubican entre estos y las autoridades, que junto al viceintendente completan el piso superior del edificio.
En el subsuelo, con acceso independiente, se ubican los 50 autos requeridos. Su forma y materialización, responden a las orientaciones necesarias, abriendo una fachada vidriada al sur con la máxima ganancia de vistas hacia la ciudad y el río, y una fachada con aberturas controladas hacia el norte. La utilización del ladrillo y el vidrio como únicos elementos en el edificio, responde a los requerimientos de mantenimiento, durabilidad y economía, y otorga una identificable característica local. La estructura resistente será en hormigón armado, del tipo losas sin vigas (mayor flexibilidad) y tabiques resistentes. Sobre el recinto se dispone una cubierta de vigas metálicas que cubre las luces a salvar y genera una entrada cenital sobre el recinto y el foyer del mismo.







