Remodelación Edificio Majestic




Remodelación y puesta en valor del edificio Majestic Intervenir en el edificio Majestic, icono de una época, ubicado en una zona institucional e histórica como es la Avenida de Mayo, requiere de un gran compromiso, responsabilidad y respeto.
El proyecto propone la renovación y refuncionalización del total del edificio, con el mínimo impacto sobre su valor patrimonial.
Con el paso del tiempo el edificio no solo perdió sus terminaciones ornamentales, sino también el carácter institucional y público dentro del eje de la Avenida de Mayo.






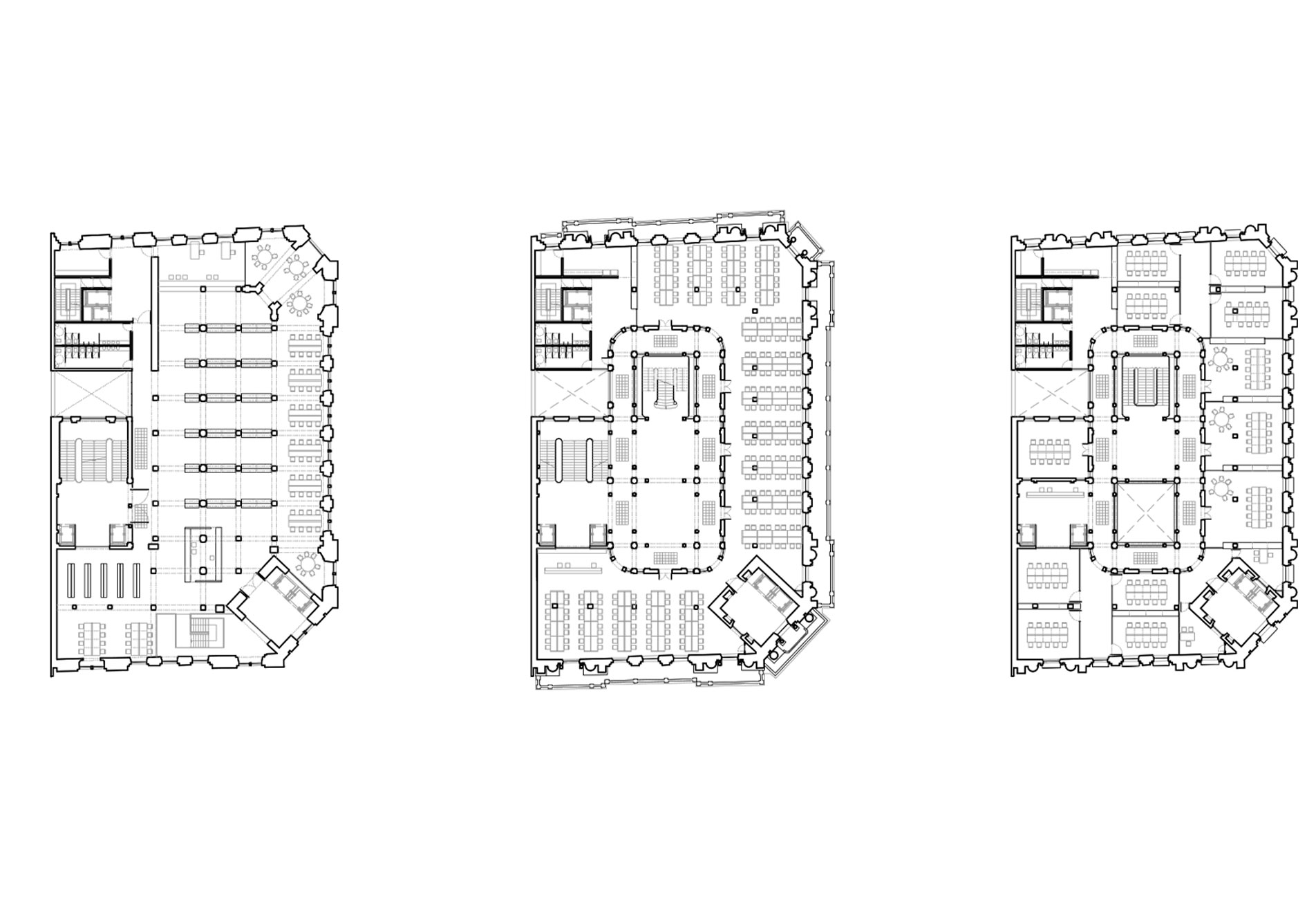
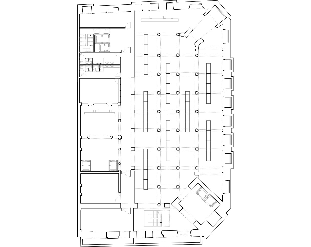
A través de intervenciones puntuales se intenta poner en valor características innatas del edificio. Un sistema de ascensores conforman a la esquina sobre Avenida de Mayo, en una torre, verdadero faro de luz que atraviesa todas las plantas del edificio generando un punto de atracción único. Reutilizando la cúpula como mirador, junto a la revitalización de la terraza jardín de uso público como contemplación de la ciudad. La planta baja de fuerte carácter público se libera, para proponer exposiciones temporarias y se vuelve transparente hacia la calle. Un vacío lineal sobre la calle Santiago del Estero llena de luz la planta del subsuelo donde se aloja el museo interactivo generando una fluída vinculación espacial, sumado a la nueva escalera que recorre las tres primeras plantas.
Del segundo al séptimo piso, se mantiene original el vacío central, ahora lleno de luz y con vistas al cielo a través del nuevo lucernario. Un sistema de muebles genera las divisiones de los locales, otorgando junto a un cielorraso técnico, la flexibilidad de usos en el tiempo en el sector perimetral del edificio. En ningún momento se incorporan elementos murarios, y la relación con el perímetro del hall central se da a través de paños de vidrio ubicados en forma estratégica para reconocer la continuidad del espacio.
Sobre las fachadas se interviene en forma sutil, reemplazando los antepechos ciegos sobre los balcones franceses (incorporados posteriormente), por barandas en blindex que permiten potenciar la altura de las carpinterías de piso a techo, recuperando la verticalidad de las proporciones en las fachadas del edificio.
El ingreso de luz al vacío central se propone tamizado a través de la densidad y profundidad de una serie de costillas blancas translúcidas de vidrio armado. Generando un efecto cinético de relación con el cielo, donde en cierto punto la sucesión de costillas conforman un plano contínuo, mientras que al recorrerlo, la distancia entre ellas permite percibir el exterior.
La profundidad, proximidad y cantidad de piezas está en relación al control de la incidencia del sol. Es así que hacia el este y hacia el oeste, funcionan como parasoles verticales, mientras que al norte y sobre la superficie de la cubierta, conforman un sistema apergolado que debido a su altura y proximidad impide el paso del sol en verano. Este dispositivo envuelto en una piel de vidrio transparente, resuelve la protección requerida y la luminosidad deseada.
En cuanto a la refuncionalización y readecuación en base a las instalaciones del edificio se tomaron los criterios para introducirlas preservando los espacios patrimoniales especialmente entre los pisos segundo y séptimo. Es por ello que se optó por equipos independientes de acondicionamiento de aire con volumen de refrigerante variable (VRV) que optimizan el uso requerido por ambiente y el mantenimiento. Mientras que el hall central de las distintas plantas se alimenta en forma perimetral por conductos por cielorraso y rejas de difusión sobre las carpinterías, logrando la mínima intervención sobre la zona de mayor valor patrimonial.
Con el mismo criterio se proyectaron las instalaciones de comunicaciones, electricidad, extinción de incendio.
Finalmente como conclusión, el proyecto recupera lo más importante que perdió el edificio, que es su carácter público e institucional, el valor que no se deteriora con el paso del tiempo.











