Hotel Posadas




Hotel Innside Posadas es un proyecto de re-funcionalización y ampliación del antiguo “Hotel Savoy” Patrimonio Histórico, Cultural y Arquitectónico de la ciudad de Posadas, Misiones.






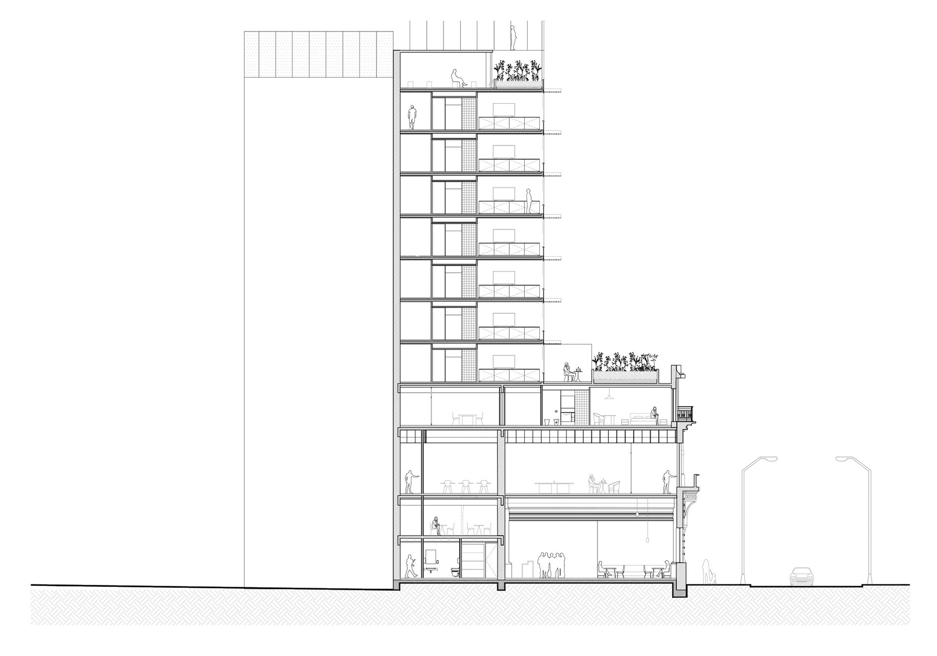
El proyecto integra la edificación vecina conservando ambas fachadas, muros medianeros y muros interiores de jerarquía en el patrimonio.
El edificio contiene en el volumen existente los programas sociales, administrativos y de servicios. A partir del tercer nivel se levanta el nuevo edificio de estructura metálica, retirado de la línea de edificación para obtener el menor impacto sobre el entorno inmediato albergando las diferentes tipologías de habitaciones.
Estructuralmente se conforma por pórticos metálicos cada 7.36m que responden a dos módulos de habitaciones. Los cerramientos a la fachada principal son vidriados protegidos en cada nivel por parasoles horizontales.











