Centro de Informes Temporarios




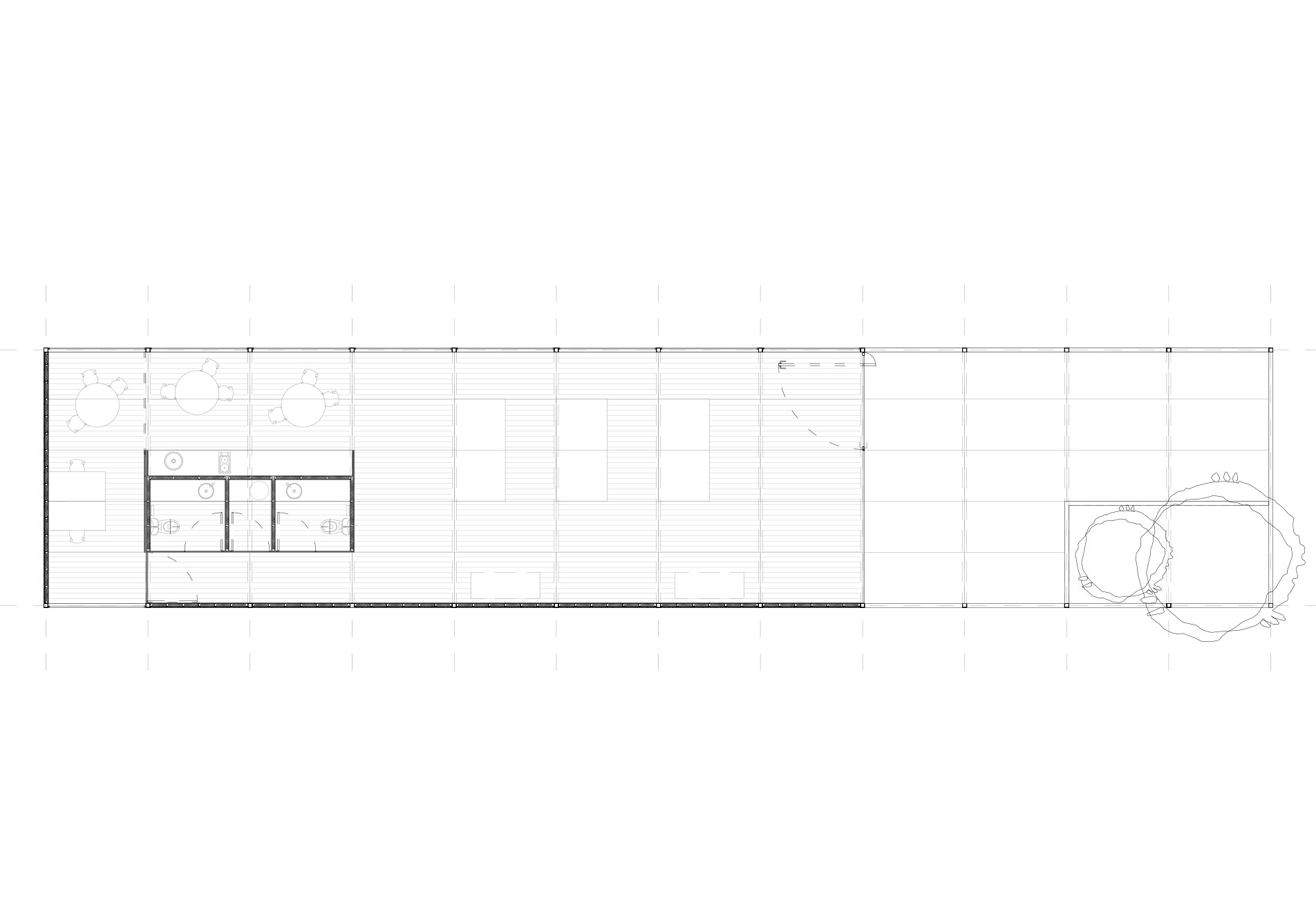
El pabellón es el primer edificio del emprendimiento de la ciudad pueblo Puertos del Lago y es el desarrollo de mayor dimensión en la provincia de Buenos Aires, que se conformará de más de veinte barrios privados en torno a un lago centro de notable paisaje y tamaño, y más de 6 km de costa sobre el río Luján. Esta pequeña construcción se encuentra implantada en una zona privilegiada de vistas largas y paisaje ribereño. De planta flexible, su función es cumplir a veces de estudio, donde en grandes mesas de trabajo se concentra toda la información sobre el avance de las obras y el desarrollo de proyecto, a la vez que sirve de centro de informes y showroom de ventas del emprendimiento.






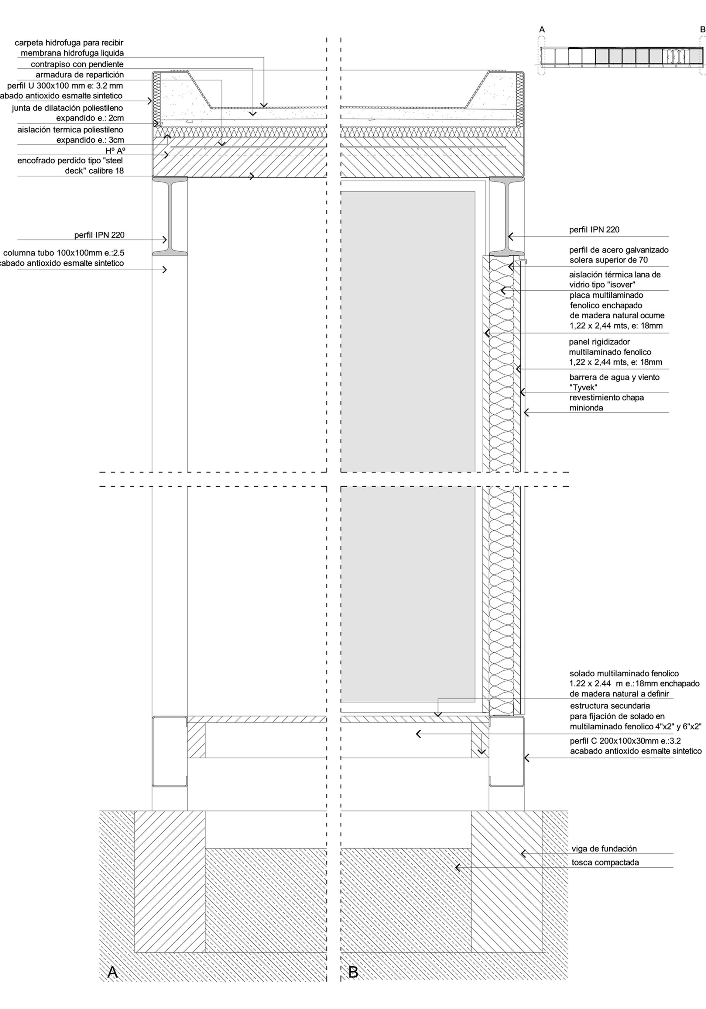
El edificio responde al paisaje y a las orientaciones, prisma transparente hacia las vistas al Este, con una extensa galería al Norte, y cerrado hacia el Sur y el Oeste. De construcción en seco, la estructura espacial del pabellón está definida por una serie de pórticos que conforman una continuidad de espacios entre galería e interior. La cubierta está resuelta con un encofrado metálico visto, y los paños vidriados se disponen entre módulos de estructura. El cerramiento exterior es de chapa acanalada sinusoidal de minionda, mientras que el interior está terminado con paneles de multilaminado fenólico enchapado en madera natural de ocumé.
Dentro del espacio interior, un volumen ubicado en forma estratégica concentra baños y cocina, realizado íntegramente en madera, conforma las diferentes zonas de actividades en el edificio: salón principal flexible, bar, paso hacia baños, y oficina privada. Todo está modulado en función de la medida estándar de los paneles de multilaminado fenólico y de los largos de vigas, generando mínimos desperdicios y máximas economías. De construcción rigurosa, medida, precisa y ligera, el edificio logra fundirse con el paisaje, confundirse con sus reflejos y generar un ambiente apropiado para recibir a los futuros propietarios e intenta ser un imaginario de la forma de vida que se desarrollará sobre el paisaje sobre el río Luján.











