Casa de Justicia




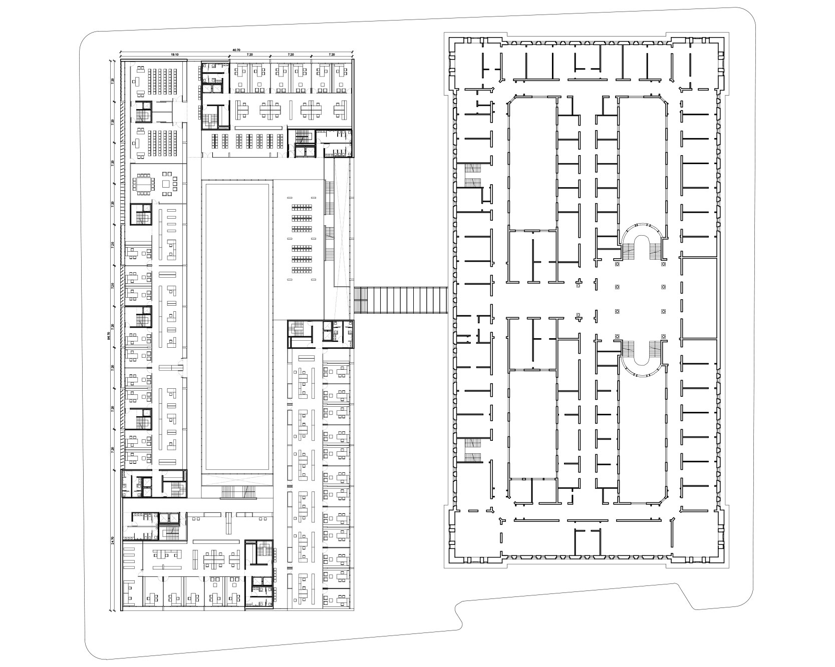
El terreno disponible para la ampliación de la casa de justicia es de particulares características, y de una ubicación estratégica dentro del casco histórico de la ciudad de Santa Fe. Por lo tanto la ocupación de la manzana libre por detrás del actual edificio de líneas académicas, debe hacerse con el mayor de los respetos. Es así que la ampliación de la casa de justicia pone en valor la neutralidad y se apoya como punto de partida en el edificio existente. Las líneas horizontales de las cornisas tienen continuidad en la horizontalidad de las losas de la ampliación que respetan los mismos niveles, logrando enrasar los volúmenes edificados.






La vinculación del edificio con su ampliación se llevó al mínimo de su expresión logrando la continuidad de la perspectiva en el pasaje. La respetuosa conexión materializada mediante una envolvente transparente, no interrumpe el ritmo de la fachada existente y un leve desplazamiento entre los volúmenes del nuevo edificio y el existente enfatizan el uso del pasaje urbano que conforma la separación entre ambos.
Un patio central, al que se vuelca la circulación pública, organiza el edificio y genera el remate visual de la perspectiva desde el hall de los pasos perdidos, acentuando la relación del eje plaza, edificio existente, ampliación. La estrategia de etapabilidad se refuerza con la independencia de los fueros, logrando así una serie de volúmenes que giran en torno al patio central, dividiendo las etapas en superficies semejantes y optimizando la habilitación de fueros por etapas hasta la culminación de la obra.











